现今很多客户对开坯的切头切尾长度有明确的可追溯要求,然而由于手段限制,目前仅仅靠操作工肉眼检测切断,无法满足客户要求。为满足用户的要求,提高轧线剪切机切头切尾的精度和可追溯性,摆脱过分依赖人的落后管理方式,可在开坯线的剪切机处各安装一套切头切尾长度自动测量系统。蓝鹏测控测长系统通过工业相机实时采集现场图像,通过系统自动计算,统计头尾的长度,并记录入库,满足用户的需求。

设备组成及结构
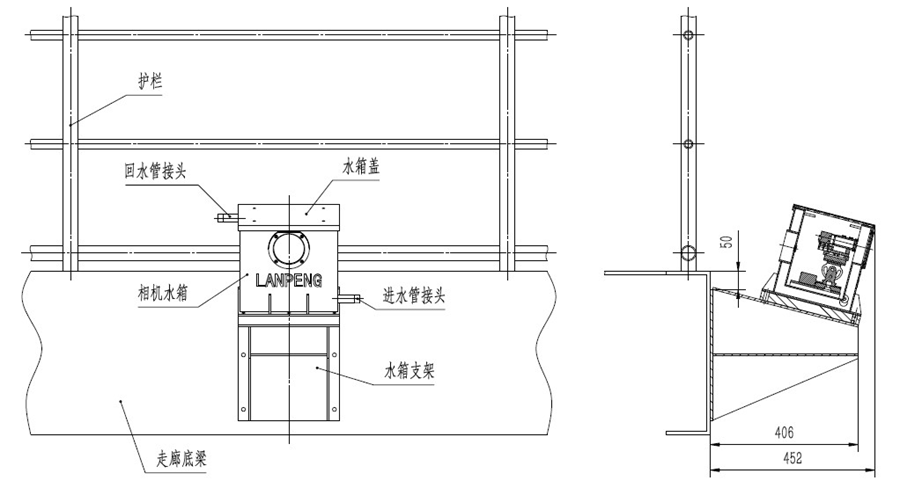
测长仪是采用工业相机和图像处理方式测量钢坯剪切断长度的设备,主要包括测长仪和控制系统两大部分。其中测长仪部分主要由工业相机、镜头、云台、水箱和水箱支架等零部件组;控制部分主要由控制柜、工控机、显示器、声光报警器等组成。
测长仪安装在轧线正对剪切机的二层走廊下部,控制系统安装在控制室。测长仪的供电由控制系统控制,测长仪采集到的图像信号通过网线传输到工控机进行处理、计算,计算结果直接在显示器上显示。当钢坯剪切段的端部超过设定的剪切位置时,系统驱动声光报警器报警提示。
设备安装位置
测长仪安装在二层走廊下方正对剪切机刃口前2m处,水箱支架与走廊底梁连接固定。测长仪相机的视野范围覆盖剪切机刃口前方(钢坯行进防线)1m和后方5m的区域。

功能简介
该测量系统采用非接触性的工作模式,运行稳定,数据准确,抗干扰能力强,操作简单方便,维护周期长,维护量少。
误差小,响应时间小,并可对误差范围进行微调,以保证误差尽可能小。
系统自动生成扫描光标,该光标实时检测坯头、坯尾位置,并且跟随坯头、坯尾移动,头尾尺寸以尖端为端点。动态光标可对定尺实时跟踪,不断显示坯头位置。
操作工根据扫描光标与定尺线,通过移动辊道来进行定尺控制,当扫描光标位于定尺线范围内,发出切割信号,操作工操作剪切,对于超出定尺线的操作进行报警提示。
发出切割信号的同时给系统一个信号,系统生成以时间为单位的文件,并且截取当时切割状态的画面和数据。上述文件统一存储在“数据库”里,文件以炉号加时间进行命名。
数据记录长时间保存,可查阅对应的画面和数据表,数据表可进行加密,可方便导出。
如果头尾需要多次切割时,系统具备自动计算功能,生成剩余需切头尾长度和光标,最后一次剪切时保存的数据为多次剪切总和数据。
在线测长仪既能实时在线检测长度,将检测数据进行存储,还能将检测数据传输给其他需求控制的设备,让高质量生产变得简单,为客户提供轧制信息,让客户更加信赖。